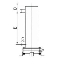
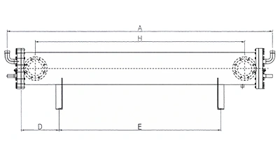
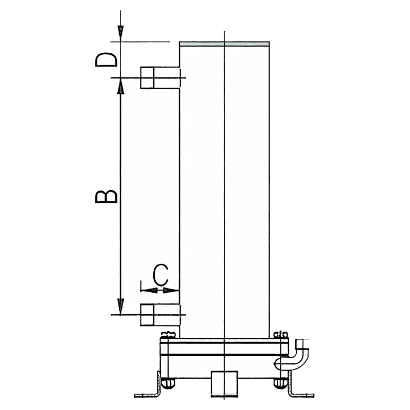
Evaporador de carcasa y tubos
Unidades de aire acondicionado de instalación horizontal que aseguran una temperatura estable dentro de armarios eléctricos y electrónicos, protegiendo los componentes internosEl evaporador tubular, fabricado en acero inoxidable de alta resistencia, ha sido diseñado para medios limpios o corrosivos. Su estructura compacta, excelente eficiencia térmica y capacidad para soportar presión lo hacen adecuado para aplicaciones en industrias con altos estándares de higiene, como la farmacéutica, alimentaria y química. Es un componente esencial en enfriadores, bombas de calor y sistemas de refrigeración de procesos, asegura un rendimiento confiable y prolongado del equipo.
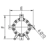
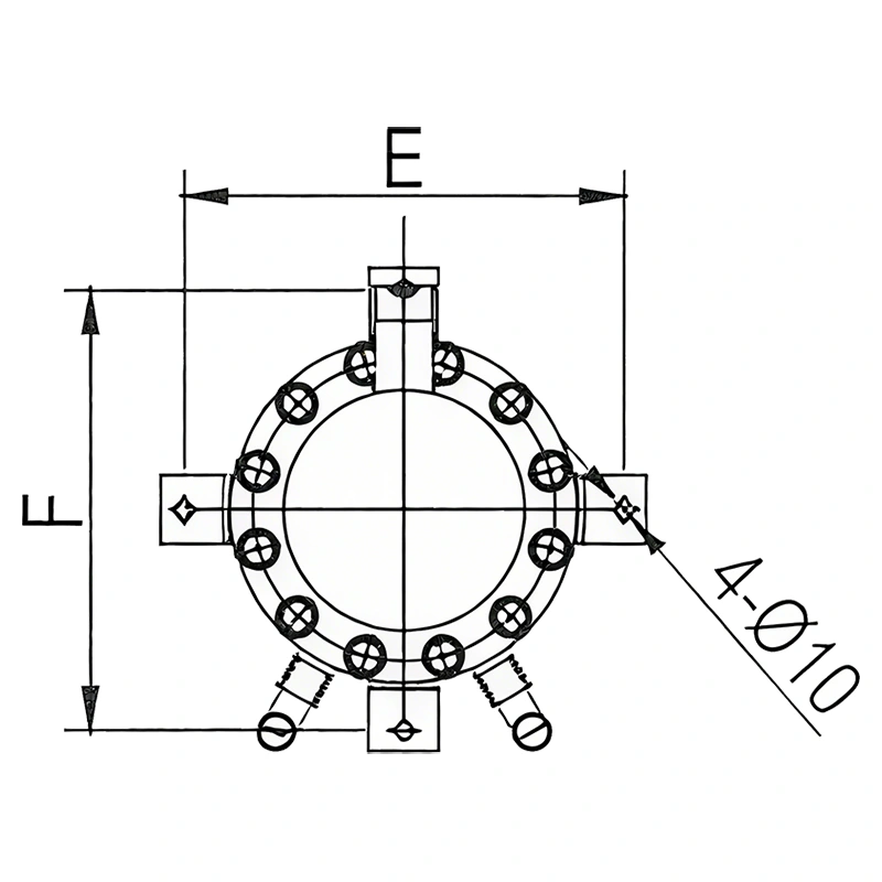
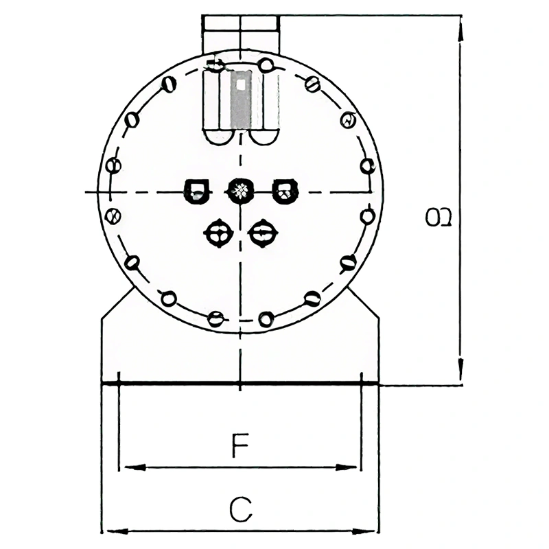
| Modelo de intercambiador de calor | Potencia del compresor | Conexión de tubería de agua | Dimensiones (mm) | |||||
| A | B | C | D | E | F | |||
|
|
1HP | DN15 | 550 | 370 | 40 | 50 | 193 | 193 |
|
|
2HP | DN20 | 550 | 370 | 40 | 50 | 212 | 212 |
|
|
3HP | DN25 | 550 | 370 | 40 | 50 | 235 | 235 |
|
|
4HP | DN25 | 550 | 370 | 40 | 50 | 255 | 255 |
|
|
5HP | DN25 | 600 | 420 | 40 | 50 | 285 | 285 |
|
|
6HP | DN25 | 600 | 420 | 40 | 50 | 285 | 285 |
|
|
7HP | DN25 | 600 | 420 | 40 | 50 | 305 | 305 |
|
|
8HP | DN25 | 650 | 475 | 40 | 60 | 305 | 305 |
|
|
10HP | DN40 | 650 | 455 | 50 | 70 | 330 | 330 |
|
|
12HP | DN40 | 650 | 455 | 50 | 70 | 330 | 330 |
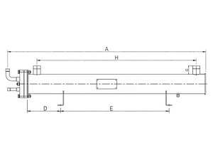
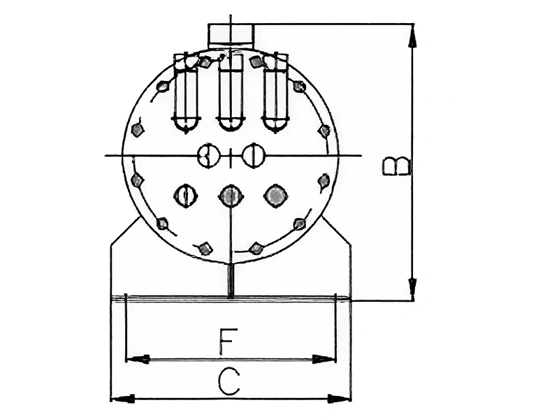
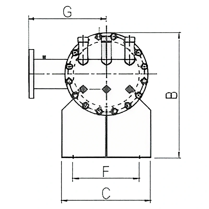
| Modelo de intercambiador de calor | Potencia del compresor | Conexión de tubería de agua | Dimensiones (mm) | |||||||
| A | B | C | D | E | F | G | H | |||
|
|
3HP | DN25 | 585 | 260 | 200 | 100 | 200 | 160 | 40 | 370 |
|
|
4HP | DN25 | 585 | 260 | 200 | 100 | 200 | 160 | 40 | 370 |
|
|
5HP | DN25 | 618 | 277 | 200 | 100 | 300 | 180 | 40 | 404 |
|
|
6HP | DN25 | 618 | 277 | 200 | 100 | 300 | 180 | 40 | 404 |
|
|
7HP | DN25 | 618 | 290 | 200 | 100 | 300 | 180 | 40 | 404 |
|
|
8HP | DN25 | 708 | 290 | 200 | 100 | 350 | 180 | 50 | 475 |
|
|
10HP | DN40 | 828 | 290 | 200 | 100 | 450 | 180 | 50 | 560 |
|
|
12HP | DN40 | 828 | 290 | 200 | 100 | 450 | 180 | 50 | 560 |
|
|
15HP | DN40 | 1118 | 290 | 200 | 175 | 600 | 180 | 50 | 860 |
|
|
20HP | DN50 | 1603 | 277 | 200 | 275 | 900 | 180 | 65 | 1320 |
|
|
25HP | DN50 | 1603 | 290 | 200 | 275 | 900 | 180 | 65 | 1320 |
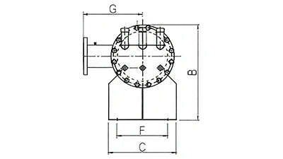
| Modelo de intercambiador de calor | Potencia del compresor | Conexión de tubería de agua | Dimensiones (mm) | |||||||
| A | B | C | D | E | F | G | H | |||
|
|
4HP*2 | DN25 | 708 | 290 | 200 | 100 | 350 | 160 | 50 | 475 |
|
|
5HP*2 | DN25 | 828 | 290 | 200 | 100 | 450 | 190 | 50 | 560 |
|
|
6HP*2 | DN25 | 828 | 290 | 200 | 100 | 450 | 160 | 50 | 560 |
|
|
7,5HP*2 | DN25 | 1118 | 290 | 200 | 175 | 600 | 190 | 50 | 860 |
|
|
10HP*2 | DN40 | 1603 | 277 | 200 | 275 | 900 | 180 | 65 | 1320 |
|
|
12HP*2 | DN40 | 1603 | 290 | 200 | 275 | 900 | 180 | 65 | 1320 |
|
|
15HP*2 | DN40 | 1603 | 290 | 200 | 275 | 900 | 180 | 65 | 1320 |
|
|
20HP*2 | DN50 | 1615 | 365 | 280 | 275 | 900 | 200 | 65 | 1320 |
|
|
25HP*2 | DN65 | 1615 | 436 | 320 | 275 | 900 | 280 | 65 | 1320 |
|
|
30HP*2 | DN65 | 1650 | 477 | 320 | 275 | 935 | 280 | 100 | 1335 |
| Modelo de intercambiador de calor | Potencia del compresor | Conexión de tubería de agua | Dimensiones (mm) | |||||||
| A | B | C | D | E | F | G | H | |||
|
|
5HP*3 | DN40 | 1118 | 290 | 200 | 175 | 175 | 180 | 50 | 860 |
|
|
10HP*3 | DN50 | 1615 | 365 | 250 | 275 | 275 | 200 | 65 | 1320 |
|
|
12HP*3 | DN50 | 1615 | 365 | 250 | 275 | 275 | 200 | 65 | 1320 |
|
|
20HP*3 | DN65 | 1650 | 477 | 320 | 275 | 275 | 280 | 100 | 1335 |
|
|
25HP*3 | DN65 | 2315 | 477 | 320 | 275 | 275 | 280 | 100 | 1865 |
| Modelo de intercambiador de calor | Potencia del compresor | Conexión de tubería de agua | Dimensiones (mm) | |||||||
| A | B | C | D | E | F | G | H | |||
|
|
10HP*4 | DN50 | 1612 | 453 | 320 | 250 | 859 | 280 | 100 | 1160 |
|
|
12HP*4 | DN65 | 1612 | 468 | 320 | 250 | 859 | 280 | 100 | 1160 |
|
|
15HP*4 | DN65 | 1612 | 468 | 320 | 250 | 859 | 280 | 100 | 1160 |
|
|
20HP*4 | DN80 | 2326 | 468 | 320 | 250 | 1550 | 280 | 100 | 1870 |
|
|
25HP*4 | DN80 | 2578 | 468 | 320 | 250 | 1802 | 280 | 100 | 2122 |
|
|
30HP*4 | DN80 | 2578 | 508 | 320 | 250 | 1802 | 280 | 100 | 2122 |
| Modelo de intercambiador de calor | Potencia del compresor | Conexión de tubería de agua | Dimensiones (mm) | |||||||
| A | B | C | D | E | F | G | H | |||
|
|
12HP*5 | DN65 | 1612 | 482 | 320 | 250 | 859 | 280 | 100 | 1160 |
|
|
25HP*5 | DN100 | 2578 | 588 | 400 | 350 | 1802 | 350 | 350 | 2122 |
|
|
25HP*6 | DN100 | 3128 | 588 | 400 | 350 | 1802 | 350 | 350 | 2672 |
- Ahorro energético
- Tecnología innovadora
- Seguridad integral
- Fabricación de precisión
-
25% Eficiencia térmica mejorada hasta en un 25 % gracias al uso de tubos de cobre con rosca interna -
20% Las aletas onduladas permiten una mejora aproximada del 20 % en la eficiencia de transferencia de calor -
6% La incorporación de una válvula de expansión electrónica con regulación PID optimiza el consumo energético, reduciéndolo en un 6 % -
20% Mediante la optimización del suministro de refrigerante, la uniformidad de distribución aumenta aproximadamente un 20% -
10% Un sistema de flujo de aire optimizado permite aumentar la circulación de aire cerca de un 10% -
20% Gracias a la regulación automática del caudal de aire, el consumo de energía del ventilador disminuye cerca de un 20 %
-
Evaporador de acero inoxidable -
Condensador en forma de V -
Depósito cilíndrico de agua -
Ventilador de bajo ruido -
Controlador con pantalla táctil -
Sistema de control avanzado
-
Protección contra sobrecalentamiento -
Protección de corriente -
Autodiagnóstico -
Anticongelante inteligente -
Alarma de caudal de agua -
Alarma de nivel de agua -
Alarma de presión -
Temporizador encendido/apagado
-
Conformado de chapa metálica de precisión -
Anillos guía de flujo estampados -
Sistema de plegado robótico (Bystronic, Suiza) -
Tecnología de soldadura láser -
Corte automatizado de material aislante -
Soldadura de juntas automatizada
Más de 20 años de experiencia en el sector nos respaldan, KANSA integra diseño y fabricación interna para ofrecer enfriadores industriales y equipos de control de temperatura de alto rendimiento, con una estabilidad térmica excepcional de ±0.05 °C. Tenemos la certificación CE, ISO 9001:2016, ISO 45001, entre otras normas internacionales y brindamos servicios a una amplia base global de más de 70.000 clientes.













